FSB·úËÜÁÏÄ͸¯Ê´±Ã²úÆ·½éÉÜ
FSB·úËÜÁÏÄ͸¯Ê´±ÃÊÇȪ´ï¹«Ë¾Éè¼ÆµÄÒ»¿îÄ͸¯Ê´ÐÔÄÜÓÅÐãµÄÎÔʽ¹ÜµÀÀëÐı㬸ÿî±Ã°´ÕÕ°²¹ú±ê×¼Éè¼Æ¡£Öá·â²ÉÓÃÍâװʽ²¨ÎƹܻúеÃܷ⣬¾²»·Ñ¡ÓÃ99%Ñõ»¯ÂÁÌÕ´É»òµª»¯¹è£¬¶¯»·²ÉÓÃËÄ·úÌî³ä²ÄÁÏ£¬Ä͸¯ÄÍÄ¥£¬±ÃÌå²ÉÓýðÊôÍâ¿ÇÄڳľÛÈ«·úÒÒ±ûÏ©(F46)£¬±Ã¸Ç¡¢Ò¶ÂÖºÍÖáÌ×¾ùÓýðÊôǶ¼þÍâ°ü·úËÜÁÏÕûÌåÉÕ½áÑ¹ÖÆ³ÉÐÍ£¬ÊÊÓÃÓÚÊäËÍÈκÎŨ¶ÈµÄÁòËá¡¢ÑÎËá¡¢´×Ëá¡¢Çâ·úËá¡¢ÏõËá¡¢ÍõË®¡¢Ç¿¼î¡¢Ç¿Ñõ»¯¼Á¡¢ÓлúÈܼÁ¡¢»¹Ô¼ÁµÈ¿Á¿ÌÌõ¼þµÄÇ¿¸¯Ê´ÐÔ½éÖÊ£¬ÊÇĿǰÊÀ½çÉÏ×îÇ¿Ä͸¯Ê´×°±¸Ö®Ò»¡£
Ȫ´ï¹«Ë¾µÄ²úÆ·È«²¿²ÉÓüÆËã»úÉè¼Æ×¨ÒµÓÅ»¯´¦Àí£¬¹«Ë¾ÓзḻµÄÉú²ú¾ÑéÍêÉÆµÄ¼ì²âÊֶΣ¬±£Ö¤ÖÊÁ¿¿É¿¿Îȶ¨¡£
FSB·úËÜÁÏÄ͸¯Ê´±Ã²úÆ·ÌØµã£º
FSB·úËÜÁÏÄ͸¯Ê´±Ã¾ßÓнṹ½ô´ÕºÏÀí¡¢ÄÍÇ¿¸¯Ê´¡¢ÃÜ·âÐÔÄÜÑÏÃܿɿ¿¡¢¹¤×÷Îȶ¨¡¢ÔëÉùµÍ¡¢»úеǿ¶È¸ß¡¢²»ÀÏ»¯¡¢ÎÞ¶¾Ëطֽ⡢άÐÞ·½±ã¡¢Á÷µÀ¹â»¬¡¢Ð§Âʸߣ¬½ÚÔ¼ÄÜÔ´µÈÓŵ㡣¶Å¾øÅÜ¡¢Ã°¡¢µÎ¡¢Â©£¬¹ã·ºÓ¦ÓÃÓÚ»¯¹¤¡¢ÖÆËá¡¢ÖÆ¼î¡¢Ò±Á¶¡¢Ï¡ÍÁ¡¢Å©Ò©¡¢È¾ÁÏ¡¢Ò½Ò©¡¢ÔìÖ½¡¢µç¶Æ¡¢µç½â¡¢ËáÏ´¡¢ÎÞÏߵ硢»¯³É²¡¢¿ÆÑлú¹¹¡¢¹ú·À¹¤ÒµµÈÐÐÒµ¡£
FSB·úËÜÁÏÄ͸¯Ê´±Ã¼¼Êõ²ÎÊý£º
Á÷Á¿£º3.6¡«100m3/h£»
Ñï³Ì£º15¡«55m£»
תËÙ£º2900r/min£»
¹¦ÂÊ£º1.5¡«18.5KW£»
½ø¿ÚÖ±¾¶£º25¡«100mm£»
ÊÊÓÃζȣº-20¡æ¡«120¡æ¡£
FSB·úËÜÁÏÄ͸¯Ê´±ÃÐͺÅÒâÒ壺

FSB·úËÜÁÏÄ͸¯Ê´±Ã»úеÃܷ⣺
FSBºÍFSB-D·úËÜÁϺϽðÀëÐıòÉÓÃĿǰ×îΪÏȽøµÄÍâװʽËÄ·ú²¨ÎƹܻúеÃܷ⣬ÆäÌØµãÊÇÄܲ¹³¥±ÃÖáµÄ¾¶ÏòÌø¶¯£¬µ¥¶ËÃæÃÜ·âÍâװʽ¡¢Ò×װж¡¢¹¤×÷״ֱ̬¹Û¡¢Ä͸¯ÄÍÄ¥ÃÜ·âÐÔÄܺá¢ÓµÓжà²ã±£»¤£¬ÑÓ³¤ÁË»ú·âʹÓÃÊÙÃü£»¶ÔÓÚÊäËͺ¬ÔÓÖÊ¿ÅÁ£¸¯Ê´ÐÔ½éÖÊʱ£¬¿ÉÅäÓÃÎÞÀäÈ´Ë®µ¥¶ËÃæÓ²¶ÔÓ²£¨Ì¼»¯¹è¶Ô̼»¯¹è£©»úеÃܷ⣬ǿ¼îÓëÇâ·úËáµÈÌØÊⸯʴÐÔ½éÖÊÅäÓÃÎÞѹÉÕ½á̼»¯¹èÃܷ⣻Óû§Ñ¡ÐÍʱÐ迼Âǵ½½éÖÊÖеĹÌÌ庬Á¿¼°½éÖÊÌØÊⸯʴÐÔ£®
FSB·úËÜÁÏÄ͸¯Ê´±Ã½á¹¹Í¼£º
|

|
ÐòºÅ
|
Ãû³Æ
|
ÐòºÅ
|
Ãû³Æ
|
|
1
|
±ÃÌå
|
8
|
Ó͸Ç
|
|
2
|
Ò¶ÂÖ
|
9
|
Ó;µ
|
|
3
|
ºó¸Ç
|
10
|
Öá³Ð
|
|
4
|
ѹ¸Ç
|
11
|
Öá³Ðѹ¸Ç
|
|
5
|
ÃÜ·â¼þ
|
12
|
ÁªÖáÆ÷
|
|
6
|
Ö§¼Ü
|
13
|
µõ½ôÂÝ˨
|
|
7
|
±ÃÖá
|
|
|
FSB·úËÜÁÏÄ͸¯Ê´±ÃÐÔÄܲÎÊý£º
|
ÐͺÅ
|
Á÷Á¿(m3/h)
|
Ñï³Ì
£¨m£©
|
¿Ú¾¶£¨mm£©
|
¹¦ÂÊ£¨kw£©
|
תËÙ
£¨r/min£©
|
ÆûÊ´ÓàÁ¿
£¨m£©
|
ЧÂÊ
£¨%£©
|
|
½ø¿Ú
|
³ö¿Ú
|
ÖṦÂÊ
|
µç»ú¹¦ÂÊ
|
|
40FSB-20L
|
10
|
20
|
§æ40
|
§æ32
|
1.4
|
3.0
|
2900
|
3.0
|
45
|
|
40FSB-30L
|
10
|
30
|
§æ40
|
§æ32
|
1.6
|
3.0
|
2900
|
3.0
|
42
|
|
50FSB-25L
|
12.5
|
25
|
§æ50
|
§æ32
|
1.8
|
3.0
|
2900
|
3.0
|
55
|
|
50FSB-30L
|
13
|
30
|
§æ50
|
§æ32
|
1.9
|
3.0
|
2900
|
3.0
|
46
|
|
65FSB-32L
|
25
|
32
|
§æ65
|
§æ50
|
4.7
|
5.5
|
2900
|
3.0
|
65
|
|
80FSB-20L
|
50
|
20
|
§æ80
|
§æ65
|
4.6
|
5.5
|
2900
|
3.0
|
45
|
|
80FSB-25L
|
42
|
25
|
§æ80
|
§æ65
|
5.7
|
7.5
|
2900
|
3.0
|
67
|
|
80FSB-30L
|
50
|
30
|
§æ80
|
§æ65
|
6.9
|
7.5
|
2900
|
3.5
|
68
|
|
80FSB-40L
|
45
|
40
|
§æ80
|
§æ50
|
10
|
11.0
|
2900
|
3.5
|
48
|
|
80FSB-50L
|
50
|
50
|
§æ80
|
§æ50
|
12
|
15.0
|
2900
|
3.5
|
57
|
|
80FSB-55L
|
50
|
55
|
§æ80
|
§æ50
|
13.5
|
18.5
|
2900
|
4.0
|
50
|
|
100FSB-32L
|
100
|
32
|
§æ100
|
§æ80
|
12
|
15.0
|
2900
|
3.5
|
70
|
|
ÐͺÅ
|
Á÷Á¿(m3/h)
|
Ñï³Ì
£¨m£©
|
¿Ú¾¶£¨mm£©
|
¹¦ÂÊ£¨kw£©
|
תËÙ
£¨r/min£©
|
ÆûÊ´ÓàÁ¿
£¨m£©
|
ЧÂÊ
£¨%£©
|
|
½ø¿Ú
|
³ö¿Ú
|
ÖṦÂÊ
|
µç»ú¹¦ÂÊ
|
|
40FSB-15(D)
|
5
|
15
|
§æ40
|
§æ32
|
0.4
|
3.0
|
2900
|
3.0
|
40
|
|
40FSB-20(D)
|
10
|
20
|
§æ40
|
§æ32
|
1.2
|
3.0
|
2900
|
3.0
|
42
|
|
40FSB-30(D)
|
10
|
30
|
§æ40
|
§æ32
|
1.2
|
3.0
|
2900
|
3.0
|
52
|
|
50FSB-20(D)
|
12.5
|
20
|
§æ50
|
§æ32
|
1.5
|
3.0
|
2900
|
3.5
|
55
|
|
50FSB-25(D)
|
12.5
|
25
|
§æ50
|
§æ32
|
1.8
|
3.0
|
2900
|
3.5
|
55
|
|
50FSB-30(D)
|
15
|
30
|
§æ50
|
§æ32
|
1.9
|
3.0
|
2900
|
3.5
|
54
|
|
65FSB-32(D)
|
25
|
32
|
§æ65
|
§æ50
|
3.6
|
5.5
|
2900
|
3.5
|
65
|
|
80FSB-25(D)
|
42
|
25
|
§æ80
|
§æ65
|
3.8
|
7.5
|
2900
|
3.5
|
67
|
|
80FSB-30(D)
|
50
|
30
|
§æ80
|
§æ65
|
6.8
|
7.5
|
2900
|
3.5
|
68
|
FSB·úËÜÁÏÄ͸¯Ê´±Ã²ðжÓë°²×°£º
±ÃµÄ²ðж
1£®±ÃÓëµç»úÁª½ÓÓÃצÐÍÁªÖáÆ÷Á¬½Ó£¬²ðжʱÏÈËɵôÖ§¼ÜÓëµ××ùµÄ4Ö»Á¬½ÓÂÝ˨.ʹ±ÃÓëµç»úÍÑ¿ª¡£
2£®ËÉ¿ª±ÃÌåºó¸ÇµÄÁ¬½ÓÂÝ˨.ÓÃľ±úÇá»÷±ÃÌåÍÑ¿ª¡£
3£®ËÉ¿ªÒ¶ÂÖÖáÓë±ÃÖáĪÊÏ×¶¶ÈÁ¬½ÓÔÚÁ¬ÖáÆ÷Öеĵõ½ôÂÝ˨¡£
4£®ËÉ¿ª»úеÃܷ⶯!²»¹Ì¶¨Âݶ¤£¬ÓÃľ´¸Çá»÷Á¬ÖáÆ÷ÖÐÐĵõ½ôÂÝ˨£¬Ò¶ÂÖÖáÓë±ÃÖáĪÊÏ×¶¶ÈËÉ¿ªºóÀ³öÒ¶ÂÖ¡¢ºó¸Ç¡¢ÃÜ·â¼þ¶¯»·.ËÉ¿ªºó¸ÇÉÏѹ¸ÇÂݶ¤.È¡³öìo»µ¡£
5£®ËÉ¿ª±ÃÖá×óÓÒѹ¸ÇÂݶ¤.È¡³ö±ÃÖá¡¢Öá³Ð¡¢ÇåÏ´Ö§¼ÜÓÍÊÒ¡£
×°Åä
°´²ðжµÄÏ෴˳Ðò½«ÃÜ·â¼þ¶¯»·¡¢ìo»·¡¢ºó¸Ç¡¢Ñ¹¸Ç¡¢Ò¶ÂÖ¡¢±ÃÌåµÈ×°ÉϽô¶¨ÂÝ˨¡£
FSB·úËÜÁÏÄ͸¯Ê´±ÃʹÓÃ×¢ÒâÊÂÏ
°²×°¼°×¢ÒâÊÂÏî
1.ÔÚ°²×°Ç°Ó¦¶Ô±ÃºÍµç»ú½øÐмì–Ë£¬¸÷²¿·ÖÓ¦ÍêºÃÎÞË𣬱ÃÄÚÎÞÔÓÎï¡£
2.½«±¾±Ã·ÅÖÃˮƽλÖÃÉϽÓÉϽø¡¢³ö¹ÜºÍ½ÓͨµçÔ´.×îºóÓÃÊÖÅ̶¯ÁªÖáÆ÷.¼ì–ËÓÐÎÞÅö²ÁÏÖÏó.ת¶¯ÇáËɾù„òÔò°²×°½áÊø¡£
3.·úËÜÁϺϽðÀëÐıøֶȽϽðÊô²î£¬¹Ê¹ÜÂ·ÖØÁ¿²»ÄÜÖ±½ÓѹÔÚ±ÃÌåÉÏ£¬±Å¡¢³ö¿Ú¹Ü·ӦÁí¼ÓÖ§¼Ü³ÐÊÜ.Ñï³Ì¸ßµÄ±ÃÔÚ³ö¿Ú»¹Ó¦°²×°ÄæÖ¹·§.ÒÔ·ÀͻȻͣ»úµÄË®´¸ÆÆ»µ¡£
4.ËùÓнӺϴ¦±ØÐë±£³ÖÃÜ·â.ÒÔ·ÀÂ©Æø¡¢ÒºÓ°Ïì±ÃµÄ¹¤×÷ÐÔÄÜ¡£
5.ÔËת¹ý³ÌÖÐÈç·¢Ï־ﶯ»ò²»Õý³£ÉùÒôʱ.Ó¦Á¢¼´Í£³µ¼ì–ËÔÒò.¹Ê½µÅųýºó²ÅÄܹ¤×÷¡£
Æð¶¯ÓëÍ£³µ
1£®ÍùË®±ÃÄÚ×¢×ãÒºÌ壨ÒýÒº£©¡£
2£®èí–ËÖ§¼ÜÓÍÊÒµÄÓÍλÊÇ·ñÔڹ涨·¶Î§ÄÚ¡£
3£®¼ì–˵綯»úÔËת·½Ïò.µ÷¿´±ÃµÄÐýת±ê¼Ç¡£
4£®¹Ø±Õ³ö¿Ú·§Ãż°Ñ¹Á¦±íÐýÈû¡£
5£®Æô¶¯µç»ú.´ò¿ªÑ¹Á¦±íÐýÈû.ÂýÂý´ò¿ª³ö¿Ú·§ÃÅ£¬µ±Ñ¹
6£®ÖØÒªÍ£³µÊ±£¬Ê×ÏȹرճöË®·§£¬ÔÙÇжϵçÔ´¡£
Á¦±íÖ¸ÕëÖ¸µ½ÐèÒªµÄλÖÃʱ.Í£Ö¹³öË®·§ÃÅ´óСµÄµ÷Õû¡£
FSB·úËÜÁÏÄ͸¯Ê´±ÃÐÔÄÜÇúÏßͼ

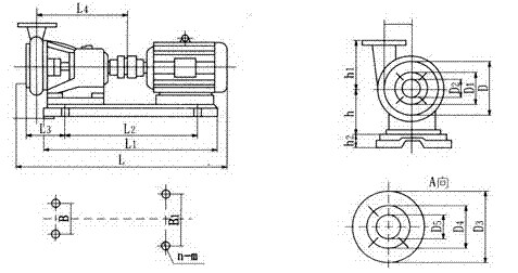
<FSBÐͺϽð·úËÜÁÏÀëÐıÃ>°²×°³ß´çͼ

FSB·úËÜÁÏÄ͸¯Ê´±Ã¹ÊÕÏÔÒòÓëÅųý·½·¨£º
|
¹Ê ÕÏ
|
Ô Òò
|
½â¾ö·½·¨
|
|
´ò²»³öÒºÌå
|
1¡¢ÎüÈë¹ÜÄÚÓÐ¿ÕÆø.±Å¿Ú×èÈû
2¡¢ÎüÉϸ߶ÈÌ«¸ß
3¡¢ÒªÇóÑï³Ì´óÓÚ±ÃÑï³Ì
4¡¢Åųö¹Ü¹ýϸ.¹Ü·Ëðʧ¹ý´ó
5¡¢·´×ª
|
1 ¡¢ÇåÀí¹Ü·£¬Åž»¿ÕÆø
2 ¡¢½µµÍ±Ã°²×°¸ß¶È
3¡¢¸ü“QÑï³Ì´óµÄ±Ã
4 ¡¢“Q¿Ú¾¶Óë±Ã¿ÚµÈ´óµÄÊä³ö¹Ü
5¡¢¸Ä±ä·½Ïò
|
|
Á÷Á¿²»×ã
|
1 ¡¢Ò¶ÂÖËð»µ
2 ¡¢ ÃÜ·â¼þËð»µ
3¡¢Êý²»×ã
4¡¢½ø¿Ú¹Ü¹ýϸ
5¡¢³ö¿Ú¹ÜÍäÍ·¹ý¶à£¬×èÁ¦¹ý´ó
|
1 ¡¢¸ü“QÐÂÒ¶ÂÖ
2 ¡¢“QÃÜ·â¼þ
3¡¢Ôö¼ÓתÊý
4 ¡¢°´¹æ¶¨ÖØÑb¹ÜµÀ
5 ¡¢ÖØÐºÏÀí°²ÅŹÜ·
|
|
Ñï³Ì²»×ã
|
1¡¢ÊäËͽéÖÊÖк¬ÓÐÆøÌå»ò½éÖÊÕ³¶È¹ý´ó
2¡¢Ò¶ÂÖºÍҶƬËð»µ
3¡¢×ªÊý²»×ã
|
1¡¢½µµÍ½éÖÊÕ³¶È»òÔö¼Ó×¢¹àѹÁ¦
2¡¢¸ü»»Ò¶ÂÖ
3 ¡¢Ôö¼ÓתÊý
|
|
Öá¶ËÉøÂ©
|
1¡¢»úеÃܷ⿨»·¹ýËÉ
2¡¢Öá¶Ë¿¨»·¹ý¶É³ß´ç¼ä϶̫´ó
|
1¡¢Ðý½ô¿¨»µÁ½Ö»ÄÚÁù½ÇÂÝîÉ
2¡¢½«±Ã²ðж,Öá¡¢¿¨µ²ÈÆF4ÉúÁÏ´ø±¡Ä¤ÊýȦ.½ôÅäºÏ.ÂÝ˨Ðý½ô
|
|
ÃÜ·âй©ÑÏÖØ
|
1¡¢ÃÜ·âÔª¼þ²ÄÁÏÑ¡Óò»µ±
2¡¢Ä¥ñ©¸¶ÑÏÖØÄ¥Ëð
3¡¢¶¯ìo»·ÎDz»„ò
4 ¡¢Ä¥²Á¸¶¹ý´ó¾²»·ËéÁÑ
|
1¡¢Ïò¹©±Ã´®Î»ÊöÃ÷½éÖÊÇé¿ö£¬ÅäÊʵ±¶¯ìo»·
2¡¢¸ü“QÄ¥ËðÁí¼þ.²¢µ÷Õûµ¯»ÉѹÁ¦£¬¼õÉÙÄ¥Ëð
3¡¢ÃÜ·â×éºÏÌåËÉ¿¨»·ïÝË¨ÖØÐµ÷ÕýλÖÃ
4¡¢Õû±Ã²ðж.»»¾²»·°´ÒªÇó×°ÃÜ·â×éºÏ¼þÓëÖá´¹Ö±¶ÈÎó²î<0.10
|
|
±ÃÄÚÓÐÔÓÒô»ò±ÃÕñ¶¯
|
1¡¢±ÃÖáÓëµç»úÖ᲻ͬÐÄ
2 ¡¢Á÷Á¿³¬¹ýʹÓ÷¶Î§²úÉúÆøÊ´
3¡¢±Ã²úÉúÆøÊ´
4 ¡¢µç¶¯»úÓëÖá³ÐÄ¥Ëð
|
1 ¡¢Ð£Õý±ÃÖáÖÐÐÄ
2¡¢Ñ¡ÓÃÊʵ±µÄ±ÃÐÍ.°´±ÃʹÓ÷¶Î§ÔËת
3¡¢½µµÍ½éÖʵÄζȻòÔö¼Ó¹àעѹÁ¦
4¡¢ÇåÏ´»ò¸ü“QÖá³Ð
|
Ïà¹Ø¹Ø¼ü´Ê£º·úËÜÁÏÀëÐıã¬FSBÐÍ·úËÜÁϺϽðÀëÐıã¬FSBÐÍÀëÐıÃ
¶©»õÇ뾡Á¿Ìṩ£º
1.ÐͺÅ2.¿Ú¾¶3.Ñï³Ì£¨m£©4.Á÷Á¿5.µç»ú¹¦ÂÊ£¨KW£©6.תËÙ£¨R/min£©7.²ÄÖÊÊÇ·ñ´ø¸½¼þ8.µçѹ£¨V£©

¸Ðл·ÃÎÊȪ´ï£¬ÎÒ¹«Ë¾Ö÷ÒªÉú²ú¹ÜµÀ±Ã£¬×ÔÎü±Ã£¬ÅÅÎ۱õȲúÆ·
Ïà¹Ø²úÆ·£º
ISWH²»Ðâ¸ÖÎÔʽÀëÐıà ÎÔʽÀëÐıÃȪ´ïÉú²ú£¬³§¼ÒÖ±Ïú IHF³Ä·úÀëÐıà FSBºÏ½ð·úËÜÁÏÀëÐıà ISWÎÔʽÀëÐıÃ
DGÐ͸ßѹÎÔʽÀëÐıà ÀëÐıÃ:ISÐÍÎÔʽÀëÐıà ÀëÐıÃ:µ¥¼¶Ë«ÎüÎÔʽÀëÐıà ISWRÎÔʽÈÈË®¹ÜµÀ±Ã